logo Atelier BNK
menu
logo Luuug

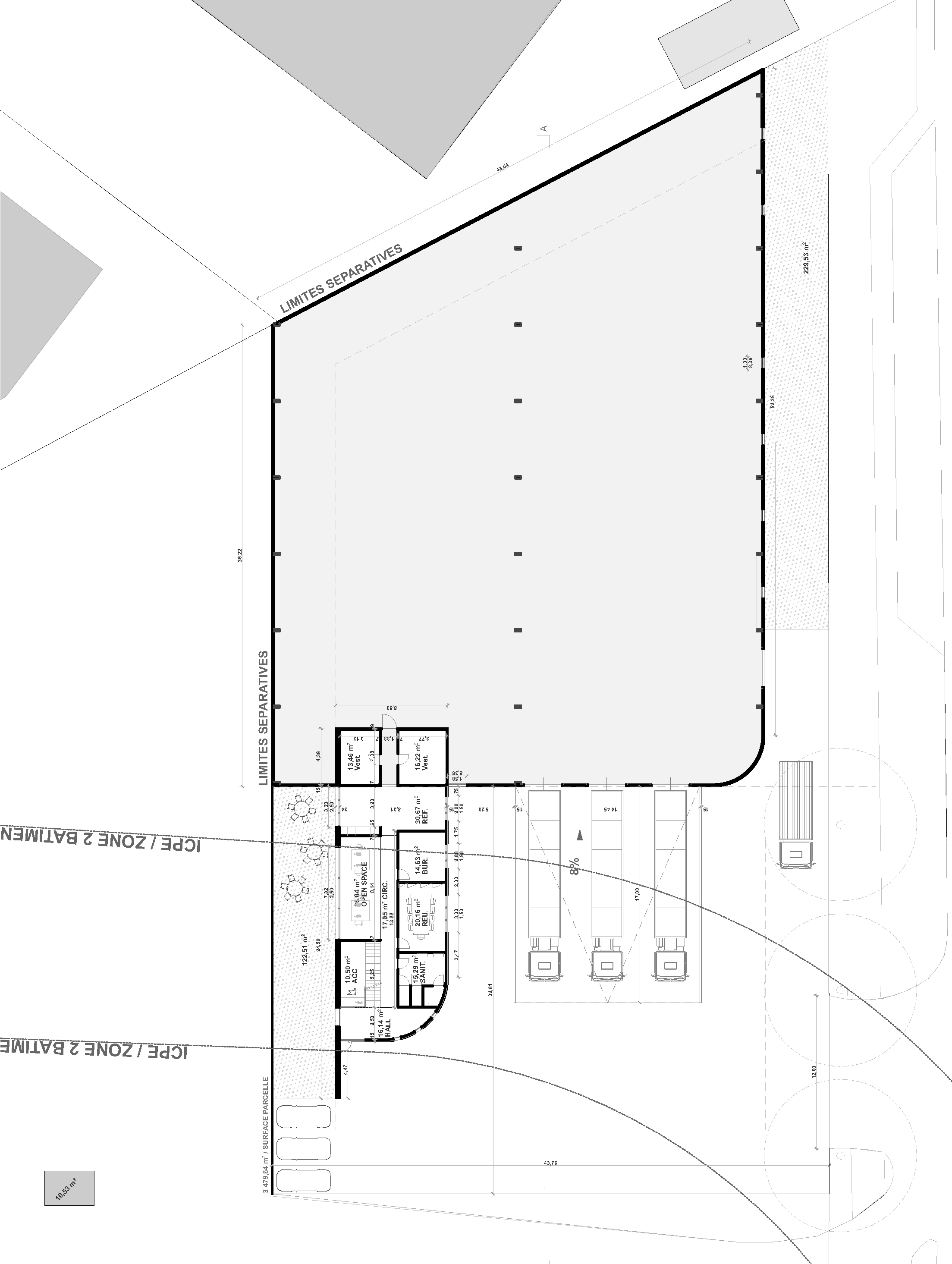
BATIMENT M

Etude de faisabilite pour une société lyonnaise pour son siège et son centre de logistque 

Année 2020

Localisation SAINT PRIEST

Surface 3000

Budget NC

Délai d'étude -

Délai travaux -

Maitrise d'oeuvre Atelier BnK - mission faisabilité

Entreprise-

Retour