logo Atelier BNK
menu
logo Luuug

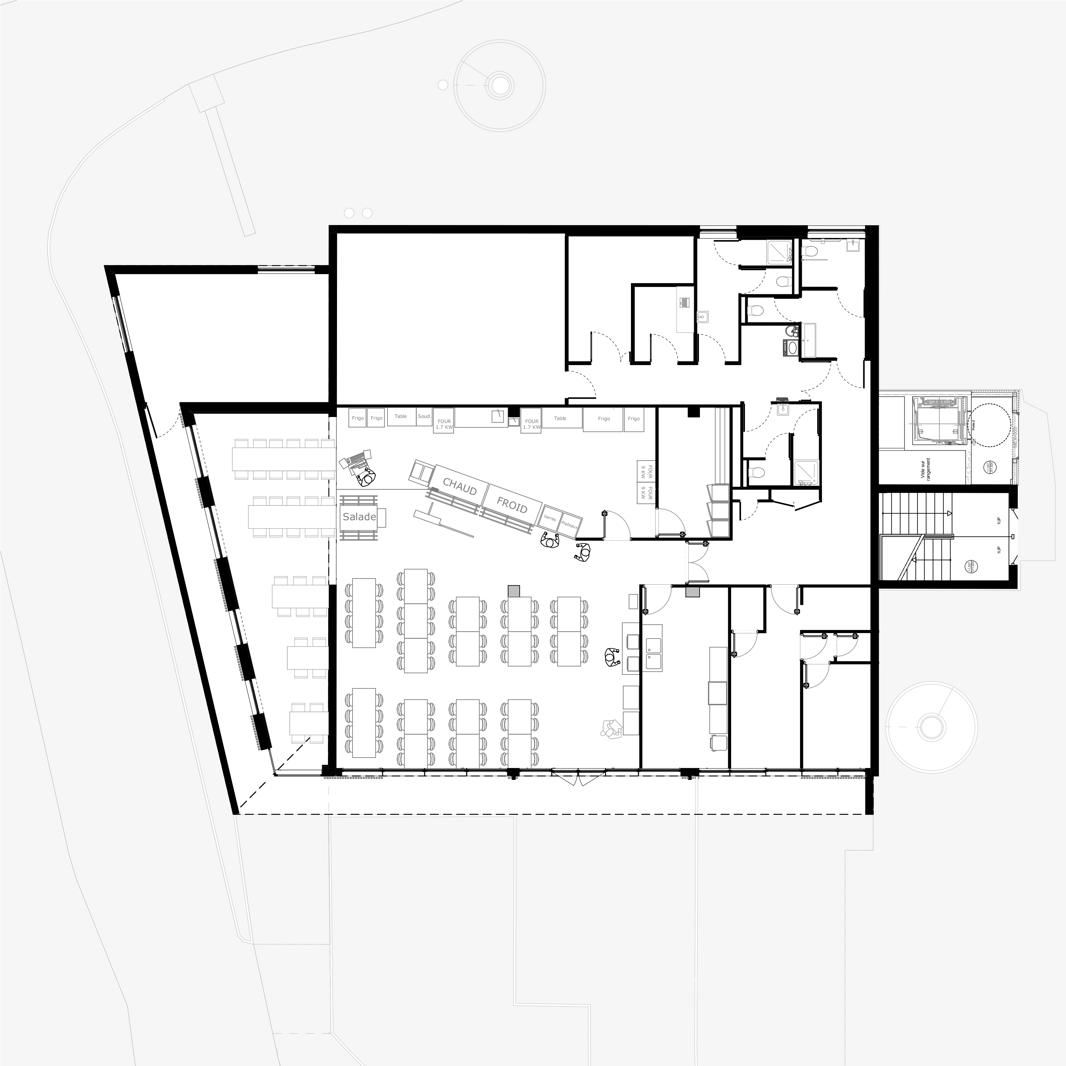
CAFETERIA

Extension, rénovation d'une cafeteria et rénovation des façades pour un site industriel en 3 phases

Phase 1 réalisée.

Année 2022

Localisation L'ARBRESLE

Surface 80 + 200

Budget NC

Délai d'étude 4 mois

Délai travaux 3 mois Phase 1

Maitrise d'oeuvre Atelier BnK

Entreprise

Retour