logo Atelier BNK
menu
logo Luuug

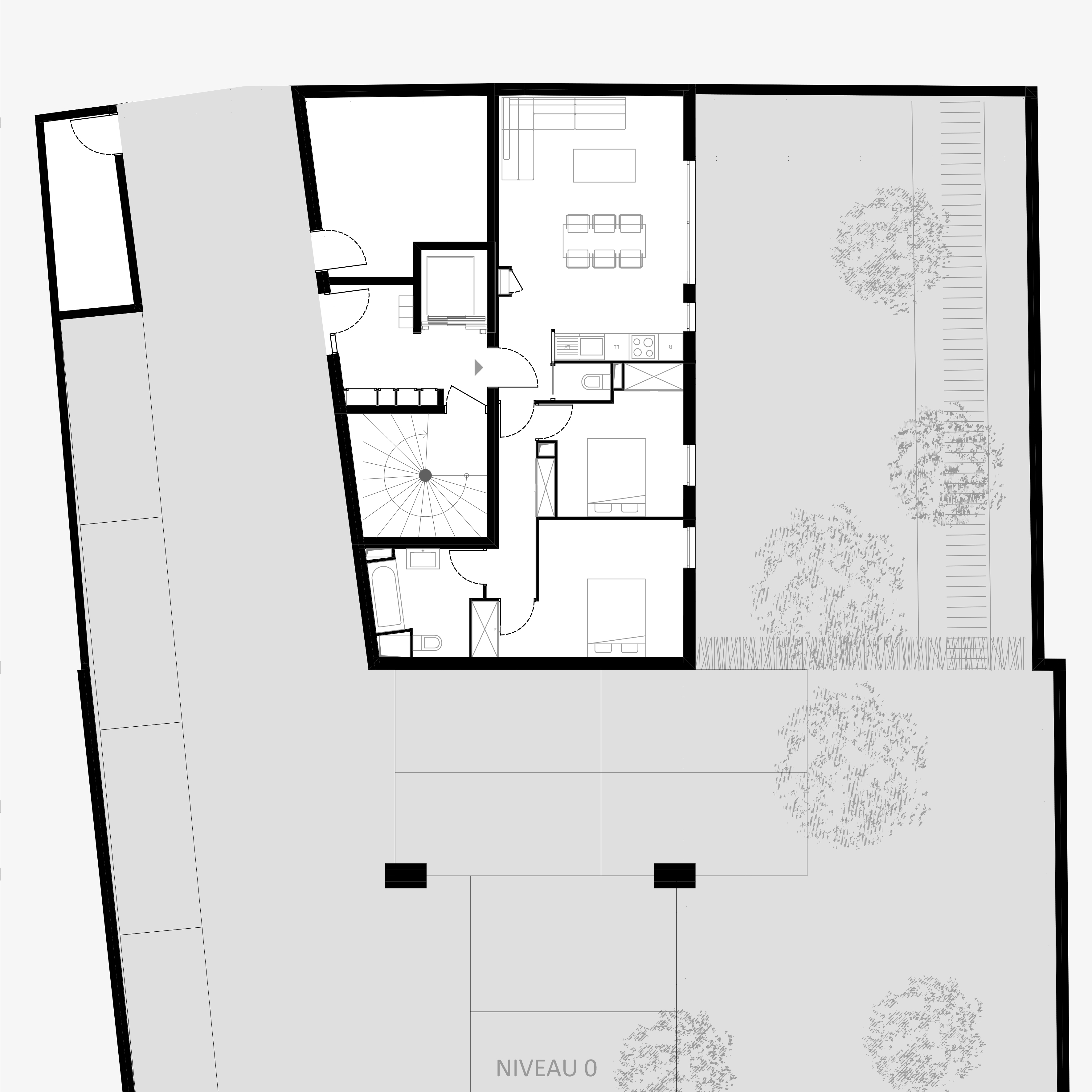
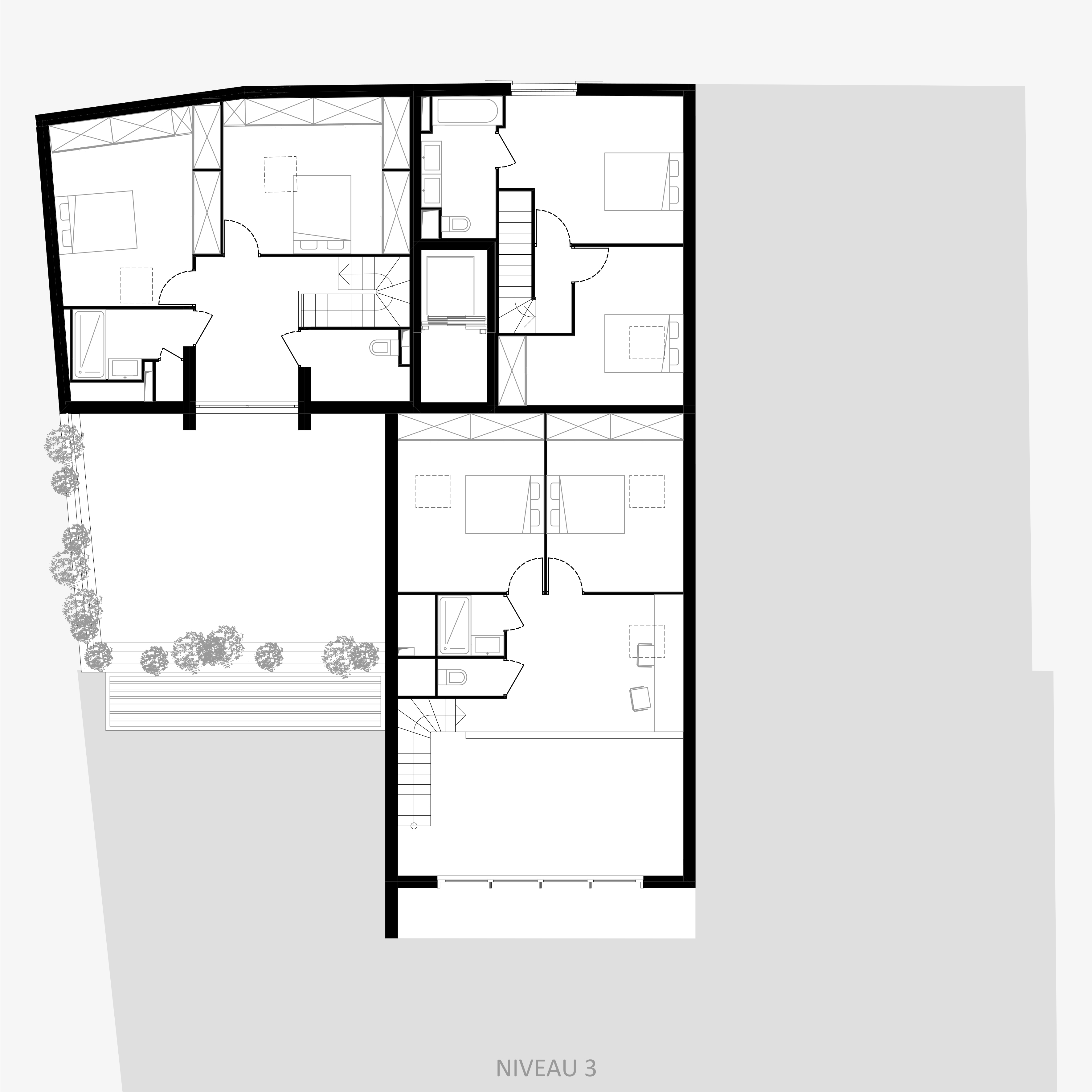
LOGEMENTS S

Réalisation d'un projet de 10 logements sur la commune de Saint Priest.

Année 2021

Localisation SAINT PRIEST

Surface 650 SDP

Budget NC

Délai d'étude 3 mois

Délai travaux

Maitrise d'oeuvre Atelier BnK - Ovation Architectes

Entreprise

Retour